8(495) 118-30-82
8(812) 467-35-44

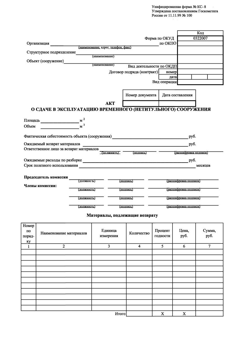
Акт о сдаче в эксплуатацию временного (нетитульного) сооружения. Форма КС-8

40 руб.
шт
Артикул 00003257

Акт о сдаче в эксплуатацию временного (нетитульного) сооружения форма КС-8

это документ, применяющийся для учета и приемки построенного временного (нетитульного) здания. Акт о сдаче составляет исполнитель монтажных и строительных работ в трех экземплярах. Один экземпляр акта остается у лица, сдающего сооружение на хранение, следующий экземпляр передается лицу, принимающему сооружение на хранение, а третий экземпляр остается в бухгалтерии.

В акте о сдаче обязательно указывают площадь и объем сдаваемого объекта, фактическую стоимость готового сооружения, ожидаемый возврат материалов после разборки здания, ожидаемые расходы по разборке и срок ожидаемого использования в месяцах. Также назначается лицо, ответственное за возврат материалов.

Подлежащие возврату материалы перечисляются в акте. Напротив каждого вида показывают процент годности и количество материалов, которые будут возвращены после разбора сооружения. В шестой графе прописывают цену материалов с учетом процента пригодности. Сведения о возврате материалов применяются в будущем для контроля за возвратом при разборе временных сооружений.

Акт должен быть скреплен подписями ответственных лиц, а также подписями председателя и членов комиссии, принимающих временное сооружение в эксплуатацию.

Формат
А 4
Плотность бумаги
80
Артикул
00-00003257



  200 руб.
шт
  200 руб.
шт
  120 руб.
шт
  40 руб.
шт